Skip to content
Price $707,000
Status Active
Beds 8
Baths 4 Baths
Home size 3,779 sqft
Lot Size 1.02 ac
Days on Market 2
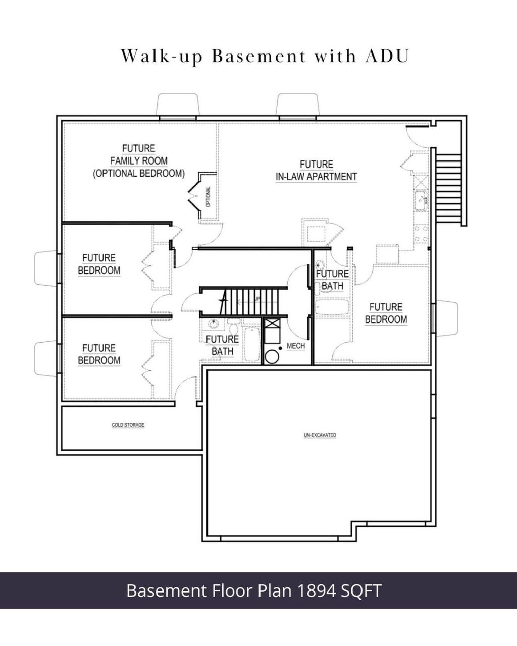
Incredible financing opportunity with a 3-2-1 rate buydown included! The Belmont blends modern comfort with true country living on a full acre surrounded by open farmland. This spacious homestead offers 8 bedrooms, 4 bathrooms, and a 3-car garage, plus a thoughtfully designed basement ADU-perfect for multigenerational living or rental income. The ADU features 2 bedrooms, 1 bath, kitchen, dining area, living room, laundry closet, and a private entrance. Outdoors, enjoy a 52-foot covered back patio overlooking peaceful pastures and a welcoming front porch with Cedar Mountain views. One of only 8 one-acre lots with animal rights, no HOA, corner cul-de-sac lot, and room to live the homestead lifestyle-without giving up convenience. Located near schools, parks, & just minutes from Cedar City.
Property Type(s): Single Family
Last Updated 12/12/2025 Year Built 2026
Community Cedar Cty; Enoch; Pintura Garage Spaces 3.0
County Iron

SCHOOLS

Jr. High School Canyon View Middle
High School Canyon View

Additional Details

AIR Ceiling Fan(s), Central Air
AIR CONDITIONING Yes
APPLIANCES Disposal, Microwave, Oven, Range
AREA Cedar Cty; Enoch; Pintura
BASEMENT Full, Walk-Out Access, Yes
CONSTRUCTION Asphalt, Frame
EXTERIOR Lighting
GARAGE Yes
HEAT Central, Natural Gas
INTERIOR In-Law Floorplan, Vaulted Ceiling(s), Walk-In Closet(s)
LOT 1.02 acre(s)
LOT DESCRIPTION Corner Lot, Cul-de-Sac
LOT DIMENSIONS 0.0x0.0x0.0
PARKING Covered, Attached
STORIES 2
STYLE Ranch/Rambler
UTILITIES Natural Gas Available, Natural Gas Connected, Electricity Connected, Sewer Connected, Water Connected
VIEW Yes
VIEW DESCRIPTION Mountain(s)

Location

 

Contact us about this Property

 / 
We respect your online privacy and will never spam you. By submitting this form with your telephone number you are consenting for Sue Wilkerson to contact you even if your name is on a Federal or State "Do not call List".

Listed with Luxury Group
The multiple listing information is provided by UtahRealEstate.com from a copyrighted compilation of listings. The compilation of listings and each individual listing are © 2025 UtahRealEstate.com, All Rights Reserved. The information provided is for consumers' personal, non-commercial use and may not be used for any purpose other than to identify prospective properties consumers may be interested in purchasing. Information deemed reliable but not guaranteed accurate. Buyer to verify all information.

This IDX solution is (c) Diverse Solutions 2025.

Email a Friend