Skip to content
Price $749,000
Status Active
Beds 4
Baths 2 Baths
Home size 3,802 sqft
Lot Size 1.20 ac
Days on Market 2
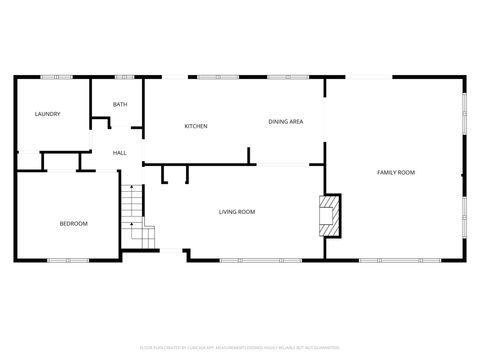
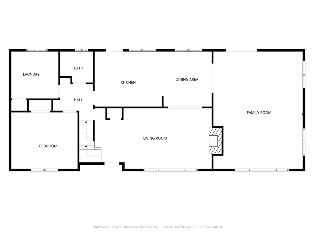
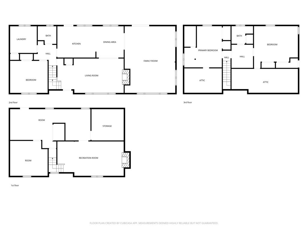
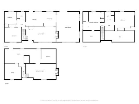
Discover the perfect blend of country living and comfort in this updated home set on 1.2 fully fenced acres. This property is livestock-friendly and offers space, versatility, and improvements throughout. Inside, the home features two wood-burning fireplaces, new electrical wiring, new HVAC system, new lighting, and new flooring. Both bathrooms have been thoughtfully remodeled. A major highlight is the 40' x 60' detached shop, fully insulated, heated and equipped for work, storage, or hobbies. The rollup door for the shop is on an automatic opener with 15'5' wide and 11'5" tall opening. The shop includes a mezzanine for additional storage and a dedicated office, making it ideal for business owners, hobbyists, or anyone needing substantial workspace. With so many major updates complete, this property offers endless possibilities-bring your animals, your tools, and your vision. Enjoy open space, modern amenities, and the freedom of rural living all in one package. Water Right 15-2179 included with the sale. Square footage figures are provided as a courtesy estimate only and were obtained from county records . Buyer is advised to obtain an independent measurement.
Property Type(s): Single Family
Last Updated 12/13/2025 Tract BRYAN SUB
Year Built 1968 Community Grantsville; Tooele; Erda; StanP
County Tooele

SCHOOLS

Elementary School Copper Canyon
Jr. High School Clarke N Johnsen

Additional Details

AIR Central Air
AIR CONDITIONING Yes
APPLIANCES Disposal, Gas Oven, Oven, Range, Refrigerator
AREA Grantsville; Tooele; Erda; StanP
BASEMENT Partial, Walk-Out Access, Yes
CONSTRUCTION Aluminum Siding, Asphalt, Brick
FIREPLACE Yes
HEAT Central, Forced Air, Natural Gas, Wood, Wood Stove
LOT 1.2 acre(s)
LOT DIMENSIONS 0.0x0.0x0.0
PARKING RV Access/Parking
SEWER Septic Tank
STORIES 3
STYLE Stories: 2
SUBDIVISION BRYAN SUB
TAXES 4391
UTILITIES Natural Gas Available, Natural Gas Connected, Electricity Connected
VIEW Yes
VIEW DESCRIPTION Mountain(s)
WATER Private, Well

Location

 

Contact us about this Property

 / 
We respect your online privacy and will never spam you. By submitting this form with your telephone number you are consenting for Sue Wilkerson to contact you even if your name is on a Federal or State "Do not call List".

Listed with Equity Real Estate (Tooele)
The multiple listing information is provided by UtahRealEstate.com from a copyrighted compilation of listings. The compilation of listings and each individual listing are © 2025 UtahRealEstate.com, All Rights Reserved. The information provided is for consumers' personal, non-commercial use and may not be used for any purpose other than to identify prospective properties consumers may be interested in purchasing. Information deemed reliable but not guaranteed accurate. Buyer to verify all information.

This IDX solution is (c) Diverse Solutions 2025.

Email a Friend