Skip to content
Price $670,000
Status Active
Beds 6
Baths 3 Baths
Home size 2,844 sqft
Lot Size 9,584 sqft
Days on Market 1
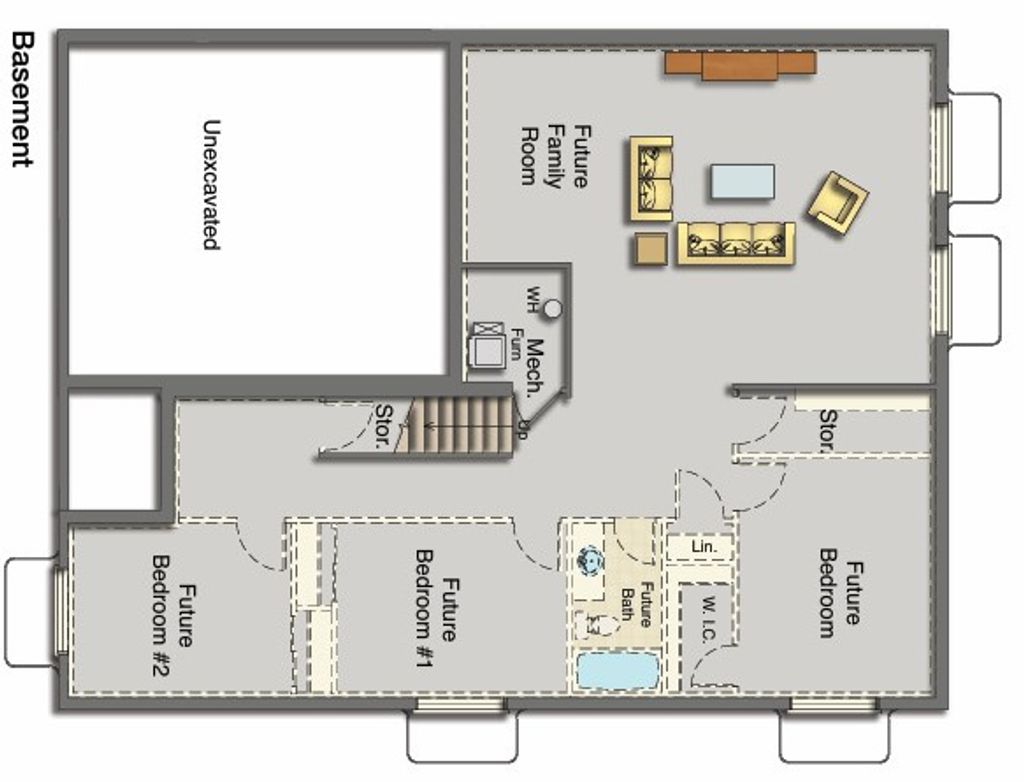
Brand new, UpDwell Homes Chandler Farmhouse Plan. Finishing in just a few weeks. Super energy efficient! Upgraded Kit. cabinets w/ Quartz counters, LVT in all main living spaces. Tiled Master Shower. Iron railing, Split bedroom floorplan. Basement has it's own separate entrance and Laundry. See basement layout picts. Basement Kitchen, appliances & Family room finish can be added for ~23KK. This would give you a fully separated basement Apt. to offset your mortgage by ~$1800/month. Large back yard in super convenient Location.
Property Type(s): Single Family
Last Updated 12/15/2025 Tract LILYPAD
Year Built 2025 Community Kaysville; Fruit Heights; Layton
Garage Spaces 2.0 County Davis

SCHOOLS

Elementary School Kaysville
Jr. High School Fairfield
High School Davis

Additional Details

AIR Ceiling Fan(s), Central Air
AIR CONDITIONING Yes
APPLIANCES Disposal, Microwave, Range Hood
AREA Kaysville; Fruit Heights; Layton
CONSTRUCTION Cement Siding
FIREPLACE Yes
GARAGE Yes
HEAT Fireplace Insert, Forced Air
INTERIOR Master Downstairs, Walk-In Closet(s)
LOT 9583 sq ft
LOT DIMENSIONS 65.4x128.0x65.4
PARKING Attached
STORIES 2
STYLE Ranch/Rambler
SUBDIVISION LILYPAD
TAXES 3000
UTILITIES Natural Gas Available, Natural Gas Connected, Electricity Connected, Sewer Connected, Water Connected
ZONING RES

Location

 

Contact us about this Property

 / 
We respect your online privacy and will never spam you. By submitting this form with your telephone number you are consenting for Sue Wilkerson to contact you even if your name is on a Federal or State "Do not call List".

Listed with Updwell Realty LLC
The multiple listing information is provided by UtahRealEstate.com from a copyrighted compilation of listings. The compilation of listings and each individual listing are © 2025 UtahRealEstate.com, All Rights Reserved. The information provided is for consumers' personal, non-commercial use and may not be used for any purpose other than to identify prospective properties consumers may be interested in purchasing. Information deemed reliable but not guaranteed accurate. Buyer to verify all information.

This IDX solution is (c) Diverse Solutions 2025.

Email a Friend