Skip to content
Price $800,000
Status Active
Beds 3
Baths 2 Baths
Home size 1,452 sqft
Lot Size 1.03 ac
Days on Market 2
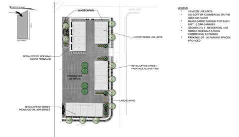
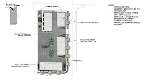
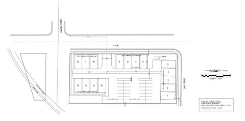
24th Street Investor/Builder/Developer Opportunity Rental Home + 1.03 Acres Property Details: 1.03-acre lot with single-family home (vacant, proven rental history). Seller motivated to build, but will consider offers to sell. Rezone approved by planning commission & City Council for 16+ mixed-use townhomes (~1,700 sq. ft. residential + 500 sq. ft. commercial, each with 2-car garages). Potential for Phase 2 expansion with additional acreage via vacated city road. Comparable sold new built townhomes are between $475K-$525K. Land value if fully entitled would be $1,100,000. Plenty of meat on the bone for a quick exit and lots of upside for the new owner. Opportunity: Prime location near new upcoming I-15 interchange, Weber State University, and downtown Ogden. Ogden City redevelopment driving demand for housing and mixed-use projects. Immediate options to lease home for income or use during entitlement/build-out. Not your typical rezone. Approvals secured include: rezone, development agreement, and code amendment. Ideal for 1031 exchange buyer with immediate utility and strong future upside. Amazing opportunity for an investor, developer, or builder. Buy now, cashflow, build next, cash out later with multiple exit strategies. Full project data room available upon request. All parcel's included in the sale are: 140200004, 1410200002, 140200001, 14020003 Square footage figures are provided as a courtesy estimate only and were obtained from County Assessor. Buyer is advised to obtain an independent measurement.
Property Type(s): Single Family
Last Updated 2/4/2026 Tract BROOKLYN ADDITION / 24TH STREET SUBDIVISION
Year Built 1937 Community Ogdn; W Hvn; Ter; Rvrdl
Garage Spaces 2.0 County Weber

SCHOOLS

Elementary School Odyssey
Jr. High School Mound Fort
High School Ben Lomond

Additional Details

AIR Evaporative Cooling
AIR CONDITIONING Yes
APPLIANCES Microwave, Oven, Portable Dishwasher, Range, Refrigerator
AREA Ogdn; W Hvn; Ter; Rvrdl
BASEMENT Full, Yes
CONSTRUCTION Aluminum Siding
GARAGE Yes
HEAT Central, Forced Air, Natural Gas
LOT 1.03 acre(s)
LOT DESCRIPTION Corner Lot
LOT DIMENSIONS 150.0x450.0x150.0
PARKING RV Access/Parking
STORIES 2
STYLE Ranch/Rambler
SUBDIVISION BROOKLYN ADDITION / 24TH STREET SUBDIVISION
TAXES 3000
UTILITIES Natural Gas Available, Natural Gas Connected, Electricity Connected, Sewer Connected, Water Connected
VIEW Yes
VIEW DESCRIPTION Mountain(s)
ZONING R15 MU

Location

 

Contact us about this Property

 / 
We respect your online privacy and will never spam you. By submitting this form with your telephone number you are consenting for Sue Wilkerson to contact you even if your name is on a Federal or State "Do not call List".

Listed with KW WESTFIELD
The multiple listing information is provided by UtahRealEstate.com from a copyrighted compilation of listings. The compilation of listings and each individual listing are © 2026 UtahRealEstate.com, All Rights Reserved. The information provided is for consumers' personal, non-commercial use and may not be used for any purpose other than to identify prospective properties consumers may be interested in purchasing. Information deemed reliable but not guaranteed accurate. Buyer to verify all information.

This IDX solution is (c) Diverse Solutions 2026.

Email a Friend