Skip to content
Price $999,000
Status Active
Beds 3
Baths 2 Baths
Home size 3,501 sqft
Lot Size 17,424 sqft
Days on Market 3
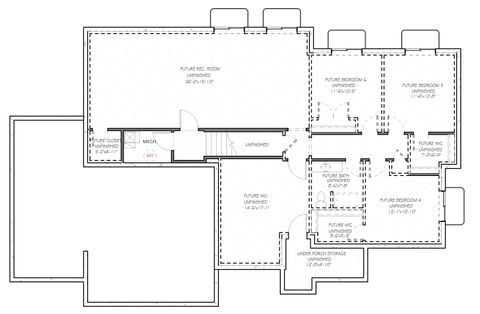
Build your dream home on this premium 0.40-acre lot in Lindon a rare opportunity to enjoy space, flexibility, and lifestyle all in one. This property offers animal rights and a peaceful setting while still being minutes from shopping, dining, and freeway access. Now offered as a to-be-built custom home opportunity with Arrow Ridge Homes, a builder known for quality construction, elevated finishes, and true customization. Buyers have the ability to design and personalize their home to fit their lifestyle no cookie-cutter limitations. A proposed floor plan and rendering will be available on-site, giving buyers a clear vision of what can be built, while still allowing flexibility to modify or create a fully custom plan. Whether you're looking for space for animals, room to grow, or a higher standard of living, this is a unique chance to build in one of Lindon's most desirable areas
Property Type(s): Single Family
Last Updated 3/31/2026 Tract WALKER
Year Built 2026 Community Pl Grove; Lindon; Orem
Garage Spaces 3.0 County Utah

SCHOOLS

Elementary School Lindon
Jr. High School Oak Canyon
High School Timpanogos

Additional Details

AIR Central Air
AIR CONDITIONING Yes
APPLIANCES Disposal, Oven, Range
AREA Pl Grove; Lindon; Orem
BASEMENT Full, Yes
CONSTRUCTION Asphalt, Cement Siding
GARAGE Yes
HEAT Central, Forced Air, Natural Gas
INTERIOR Walk-In Closet(s)
LOT 0.4 acre(s)
LOT DIMENSIONS 105.0x165.0x105.0
SEWER Public Sewer
STORIES 2
STYLE Ranch/Rambler
SUBDIVISION WALKER
TAXES 1344
UTILITIES Natural Gas Available, Electricity Available, Sewer Available, Water Available
VIEW Yes
VIEW DESCRIPTION Mountain(s)

Location

 

Contact us about this Property

 / 
We respect your online privacy and will never spam you. By submitting this form with your telephone number you are consenting for Sue Wilkerson to contact you even if your name is on a Federal or State "Do not call List".

Listed with R and R Realty LLC
The multiple listing information is provided by UtahRealEstate.com from a copyrighted compilation of listings. The compilation of listings and each individual listing are © 2026 UtahRealEstate.com, All Rights Reserved. The information provided is for consumers' personal, non-commercial use and may not be used for any purpose other than to identify prospective properties consumers may be interested in purchasing. Information deemed reliable but not guaranteed accurate. Buyer to verify all information.

This IDX solution is (c) Diverse Solutions 2026.

Email a Friend